Variété was een vorm van theater met amusante voordracht, zang en dans, alsook gevarieerde optredens van artiesten als acrobaten, goochelaars, hypnotiseurs, gedachtelezers, enzovoorts. Het variété ontwikkelde zich in de tweede helft van de 19e eeuw van kroegvermaak tot een respectabele vorm van amusement, geschikt voor het hele gezin.. Variété is een vorm van theater met amusante voordracht, zang en dans, alsook gevarieerde optredens van artiesten als acrobaten, goochelaars, hypnotiseurs, gedachtelezers, enzovoorts.
Historia de nuestro cine Varietés (presentación) RTVE Play

Friedrichsbau Varieté Stuttgart Up to 500 persons fiylo

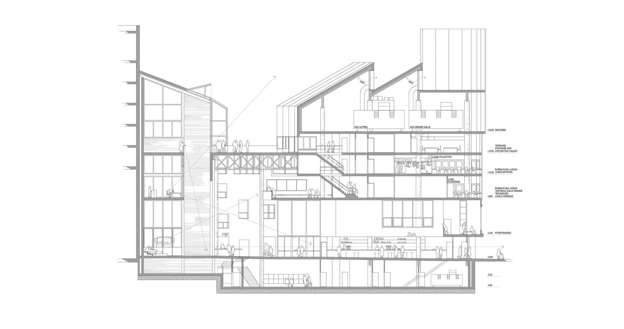
Flores & Prats and Ouest Architecture win the competition to renovate the Ancien Théâtre des

20121110 Klaus Renzel Perlen des Varieté 1550 Flickr

Lemercier et Cie, Paris, Théâtre des Variétés. M. Pradeau par Photographie originale / Original

Zaandam Kalverringdijk. Klederdracht voor restaurant De Zwarte Walvis aan Zaanse Schans. In 16e

Das Variete

Theatre variete Black and White Stock Photos & Images Alamy

Vaudeville in de Kleine Komedie (AFGELAST) De Theatertroep

De herbestemming van het Théâtre des Variétés, een vergeten erfgoed uit het interbellum

variete wesele YouTube

Dit is waarom deze sloot in Assendorp vroeger de Martelaarsgracht werd genoemd Oozo.nl

Absurd toneel Tgsonja.nl

Paul Mirabel THEATRE DES VARIETES PARIS 02 Billets & Places

Schoenmakerskapel op de Schoenmarkt 8. Eigenlijk is de echte naam Kapel van O.L.V van Toevlucht

Das GOP VarietéTheater HannoverDeinErnst

Varieté et cetera

Theatre des varietes Black and White Stock Photos & Images Alamy

Pin op Amsterdam Tuinsteden Osdorp, Sloten,Slotermeer, Geuzenveld

Programme du THEATRE DES VARIETES. by THEATRE DES VARIETES bon Couverture souple (1960) LeLivre
Antwoorden voor VROEGER WERD DEZE THEATERVORM VARIETE GENOEMD in Kruiswoordpuzzel en pijlen. Vind de ⭐ beste antwoorden en synoniemen om elk soort woordspelletje af te maken. Onder de antwoorden die je hier kunt vinden is Cabaret met 7 letters het beste.. Vroeger werd deze theatervorm variété genoemd. (10) Plaats van de puzzel: AD. Datum: 04 maart 2023 08:41. Tags: vroeger, werd, theatervorm,. Deze Polynesische eilandengroep bestaat uit 177 eilanden. (5).